Project SIZE: 5000 sq ft
Project Location: Kirkland
A Lake Washington Estate Where Heated Concrete Floors, Dual Kitchens, and Custom Architectural Elements Define Daily Life
The public spaces of this Kirkland waterfront residence are designed as a sculptural extension of the luxury master closet—where contemporary architecture, custom furnishings, and curated lighting create a gallery-like setting for everyday living. Floor-to-ceiling glazing frames the water and landscape, while a restrained palette of warm woods, stone, metal, and glass keeps the focus on form, proportion, and atmosphere.
The Result
The finished home is a property that stopped us in our tracks at completion — and we designed it. Every element performs exactly as intended. The heated floors, the dual kitchens, the Italian chandelier, the custom fireplace: each one contributes to a home that feels inevitable, as though it could not have been designed any other way. We are deeply proud of what our team achieved here, and the awards the project has received reflect the level of commitment every collaborator brought to its execution.
Frequently Asked Questions
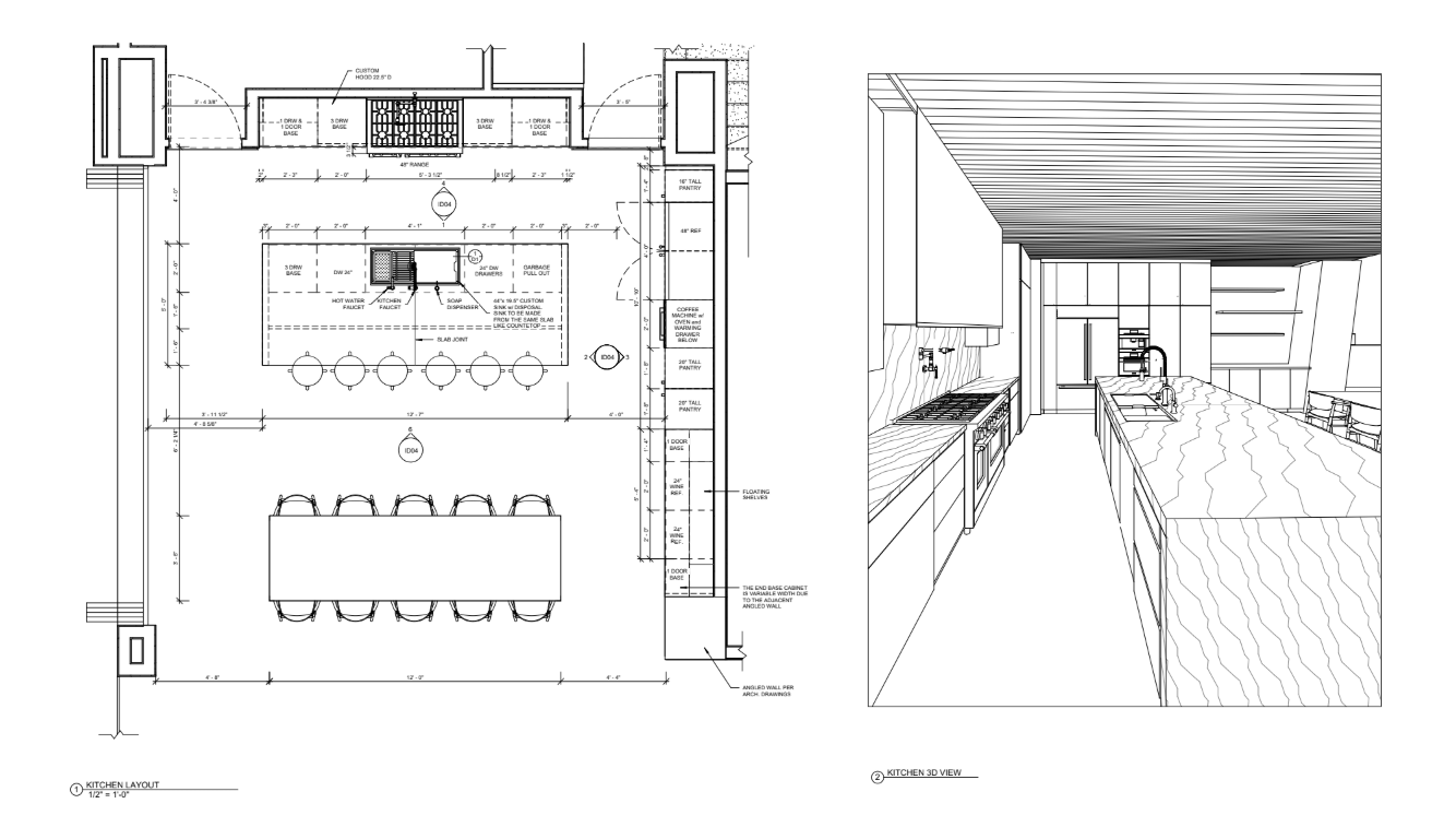
Several elements distinguish this project: radiant heated polished concrete floors throughout, two fully designed kitchens serving distinct functions, a custom fireplace, an Italian chandelier of significant scale, and a furniture and art program curated specifically for the client’s lifestyle. The combination of entertainment capacity and residential warmth is what sets it apart.
We designed the entertaining kitchen as a social and visual centerpiece — open, dramatic, and built for hosting — while the rear chef’s kitchen was planned for serious culinary use with its own layout and storage logic. Both share a cohesive material language while serving completely different functions.
Yes. We are experienced in leading design coordination across large project teams, including external contractors, structural engineers, and specialty trades. Our team manages the full design-through-execution process, ensuring that concepts, selections, and layouts are implemented exactly as specified.
Let’s Create a Home That Reflects How You Live
Reach Out to Begin Your Design Journey.
Become A Client
If you’re ready to collaborate with a team that values craftsmanship, creativity, and care, we invite you to connect with us. Furthermore, you can explore more of what we offer through ARIID Build & ARIID Home—each dedicated to delivering a seamless, elevated experience for your home.
